Si estás pensando en construir tu hogar y cuentas con un terreno pequeño, ¡esta idea te va a encantar! Hoy quiero mostrarte una casa moderna pequeña de 6×6 metros que demuestra que no se necesita una gran superficie para vivir con estilo, comodidad y todo lo necesario. Su diseño combina espacios bien pensados, un estilo exterior moderno y un interior sencillo pero acogedor que te hará sentir en casa desde el primer momento.

Sigue leyendo porque aquí encontrarás inspiración, ideas prácticas y detalles que te ayudarán a imaginar cómo podría ser tu futura casa soñada. 🌿🏡
Tabla de Contenido
Características de la casa 6×6 metros
Este diseño aprovecha al máximo cada rincón de sus 36 m², creando un espacio acogedor, funcional y muy fácil de mantener. Es perfecto si buscas un hogar práctico sin renunciar al estilo.
Algunas de sus características principales son:
- Fachada moderna con tonos blancos, detalles oscuros y madera natural.
- Distribución bien pensada con sala, cocina con desayunador, baño completo y dormitorio.
- Interior luminoso, con colores claros y ambientes conectados que dan sensación de amplitud.
- Ideal para terrenos pequeños, proyectos personales o como casa de descanso.
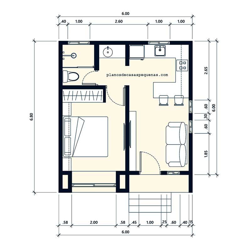
Plano de Casa 6×6 Metros: 36 m² Muy Bien Aprovechados
Una de las cosas que más sorprende de esta casa moderna pequeña de 6×6 metros es cómo cada espacio ha sido planeado para ofrecer comodidad sin desperdiciar ni un centímetro. Al entrar, te recibe una sala abierta que se conecta de forma fluida con la cocina. El desayunador se convierte en un punto de reunión ideal para compartir comidas o charlas diarias.

Hacia el fondo del plano encontrarás un baño completo y un dormitorio cómodo, pensados para ofrecer privacidad y descanso. Todo fluye de manera natural, creando un ambiente cálido y funcional en muy pocos metros.
Diseño Exterior: Sencillez Moderna con Toques Naturales
La fachada es uno de los grandes atractivos de esta casa. Predomina el blanco, que aporta luminosidad y una sensación de amplitud, mientras que los detalles en madera y los contrastes oscuros le dan un aire elegante y contemporáneo.

Además, la incorporación de vegetación en los alrededores crea un ambiente más fresco y natural. El resultado es un exterior moderno, acogedor y muy agradable a la vista, ideal para quienes aman los espacios sencillos pero con personalidad.
Diseño Interior: Simple, Luminoso y Acogedor
Entrar a esta casa es encontrarse con un ambiente tranquilo, funcional y muy bien pensado. Cada espacio ha sido diseñado para sentirse amplio, aunque el tamaño sea reducido. Los colores claros en paredes y mobiliario ayudan a que la luz natural fluya, creando una atmósfera fresca y agradable.
Sala de Estar: Pequeña pero Muy Acogedora

Al ingresar, lo primero que encuentras es una sala de estar cómoda y bien distribuida, perfecta para relajarte, ver una serie o recibir a tus invitados. Gracias a su diseño abierto, el espacio se siente más grande y conectado con el resto de la casa.
Cocina con Desayunador: Práctica y Moderna

La cocina es compacta pero muy funcional. El desayunador se convierte en un espacio multifuncional: sirve como comedor, zona de trabajo o lugar ideal para compartir un café por la mañana. Todo está al alcance, con un diseño limpio y moderno que sigue la línea del resto del hogar.
Baño Completo: Pequeño y Bien Distribuido
El baño sorprende por su distribución inteligente. Cuenta con ducha, lavabo y sanitario, todo organizado para aprovechar al máximo el espacio. Los tonos neutros y los detalles sencillos logran que se sienta cómodo y visualmente más amplio.
Dormitorio Principal: Tu Refugio Personal

El dormitorio es ese rincón pensado para descansar y desconectar. Aquí hay espacio suficiente para una cama doble, armario y detalles decorativos que lo convierten en un lugar acogedor. Los tonos suaves y la entrada de luz natural crean un ambiente perfecto para el descanso.
Tour Virtual de la Casa 6×6
Imagina entrar a tu casa moderna pequeña de 6×6 metros: un espacio luminoso y abierto te da la bienvenida en la sala. Unos pasos más allá encuentras una cocina práctica con un desayunador listo para tus comidas diarias. Al fondo, un baño bien distribuido y un dormitorio cómodo completan el conjunto. Todo está pensado para que vivas con comodidad y estilo, sin importar el tamaño.
Conclusión: Vivir Bien en Espacios Pequeños
Como ves, esta casa moderna pequeña de 6×6 metros es un excelente ejemplo de cómo el diseño puede transformar espacios reducidos en hogares funcionales y llenos de estilo. Su distribución inteligente, sus detalles modernos y su ambiente acogedor la convierten en una opción ideal para quienes buscan practicidad sin renunciar a la estética.
A veces, las mejores ideas nacen en los espacios más pequeños… y esta casa lo demuestra. 🌿🏠
Si estas interesado en ver mas casas pequeñas te invitamos a ver nuestra galeria de casas modernas.



